Bordeaux
15.09.2022
Conçue avec OLGGA pour CA Immobilier, l’opération de 65 logements au sein de la ZAC Bastide Niel suit son cours en phase chantier. Les dernières avancées du gros-œuvre donnent à voir les pignons effilés, qui concrétisent les intentions urbaines et architecturales de MVRDV, MOE urbain.
La volumétrie du bâtiment sera achevée avec l’intervention des couvreurs et charpentiers. Pour traduire l’effet d’enveloppe continue entre mur et toiture (matérialité et coloris), nous avons eu recours à un procédé de couverture nouveau, avec l’emploi pour la couverture d’une céramique innovante classiquement posée en façade. Les logements sont répartis dans un archipel de bâtiments, disposition qui a amplifié la complexité du chantier.
Pour optimiser le déroulement des travaux, un principe de co activité a été retenu: ainsi les charpentiers sont intervenus sur le premier bâtiment achevé, tandis que la construction des autres bâtiments était encore en phase gros-œuvre. Cette approche a été permise par une préparation fine du chantier, réalisée en collaboration par Atelier Cambium, l’OPC du chantier et le SPS.
04.04.2022
Une nouvelle étape du chantier des 65 logements conçu avec OLGGA pour CA Immobilier a été récemment franchie avec la validation du prototype de façade, construit par Sogedda, DL océan, SMAC, Blaye Fermetures et A2M. La teinte du béton et l’harmonisation de la couverture, de la serrurerie et des menuiseries ont fait l’objet d’une attention particulière, pour se conformer aux intentions architecturales définies par MVRDV, MOE urbaine du quartier Bastide Niel. Un autre point d’attention, plus technique, concerne l’effet de monolithe désiré par MVRDV: cette intention malmène la collecte des eaux pluviales et le traitement de l’étanchéité de la toiture. À cette fin, un dispositif de récupération a été dessiné à la façon d’un chêneau à la nantaise horizontal.
En parallèle, une deuxième grue a été installée, et le premier niveau du bâtiment F de l’archipel des cinq bâtiments a été construit.
21.12.2021
Au sein de la ZAC Bastide Niel à Bordeaux, le chantier des 65 logements conçu avec OLGGA pour CA Immobilier poursuit sur sa lancée. Succédant au montage de la grue fin novembre, les fondations sont en cours de réalisation pour atteindre l’assise située à une profondeur de 25 mètres. Les fondations seront in fine plus importantes que le bâtiment. En parallèle, un prototype de façade est construit pour vérifier la teinte du béton et l’harmonisation de la serrurerie et des menuiseries. Servant de modèle pour les entreprises investies dans le chantier, ce prototype est d’autant plus nécessaire que la volumétrie singulière et la continuité plastique de l’enveloppe (toiture et façade), définies par MVRDV pour l’ensemble du projet urbain, engendrent des défis techniques de traitement d’étanchéité et de gestion des eaux pluviales.
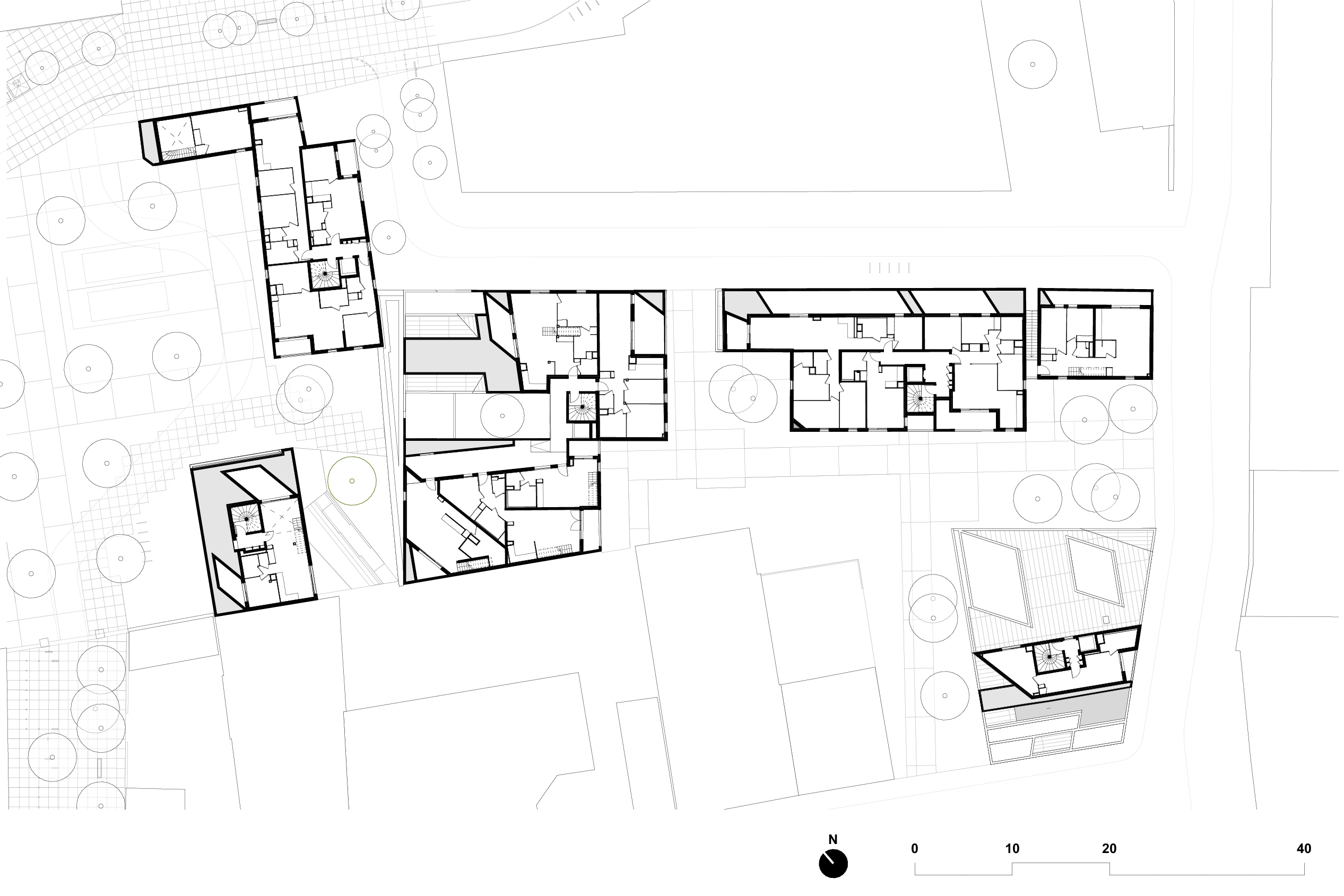
Les logements sont distribués dans un archipel de six bâtiments, dont l’implantation et le dimensionnement composent notamment avec le passage des eaux souterraines. Le bâti intègre également dans les façades en béton les murs d’enceinte en pierre massive de l’ancienne caserne militaire, sans appui structurel, créant une enveloppe à la fois mixte et continue. Aujourd’hui disparus, les sheds sont évoqués par un changement de teinte de béton dans le soubassement de certains des six bâtiments, à la façon d’un palimpseste.
Rendez-vous dans un an pour l’achèvement du gros oeuvre!
30.06.2021
Après 12 mois d’études, notre projet de 65 logements à Bastide Niel pour le compte de Crédit Agricole Immobilier et en collaboration avec Olgga entre en phase chantier. Les logements sont répartis dans un bouquet de six îlots, dont la volumétrie effilée concrétise avec fidélité les intentions du masterplan de MVRDV. Les prochaines semaines seront consacrées aux opérations de désamiantage et de démolition, tandis que la mise en œuvre des pieux débutera en octobre. Livraison prévue en octobre 2023.
28.02.2020
Zac Bastide Niel
Nous avons déposé le dossier de permis de construire des 65 logements conçus avec Olgga architectes sur la ZAC Bastide Niel à Bordeaux.
25.02.2019
Zac Bastide Niel – Lauréat concours
L’Atelier Cambium est lauréat, aux côtés de Olgga Architectes (Paris) d’un chapelet de 6 ilots totalisant 65 logements collectifs sur la ZAC Bastide Niel (MVRDV – Winy Maas) pour le compte de Crédit Agricole Immobilier.

Au sein de la ZAC Bastide Niel à Bordeaux, le projet des 65 logements conçu avec OLGGA pour CA Immobilier s’efforce de concrétiser le plus fidèlement possible les préceptes architecturaux et urbains définis par MVRDV : effet de monolithe, continuité plastique, gabarits ciselés pour assurer un ensoleillement maximal. Formant un archipel, les six bâtiments intègrent dans les façades en béton les murs d’enceinte en pierre massive de l’ancienne caserne militaire, sans appui structurel, créant une enveloppe à la fois mixte et continue. Aujourd’hui disparus, les sheds sont évoqués par un changement de teinte de béton dans certains soubassements, à la façon d’un palimpseste.
Échantillon fidèle des principes urbains, architecturaux et paysagers de la ZAC, la disposition des 6 îlots ainsi que le traitement des espaces communs recrée localement une vie de quartier.

Archipel d’îlots de la ZAC Bastide Niel, ces 65 logements concrétisent par leur morphologie et leur matérialité les préceptes urbains et architecturaux voulus par MVRDV.

